Home
Serviços
Plugins
Cases
Equipe
Contato
Menu
Home
Serviços
Plugins
Cases
Equipe
Contato
Conheça nossos cases de sucesso
Modelagem de andaimes, escoramentos e fôrmas
+ Saiba Mais
Design Generativo para Casas Modulares
+ Saiba Mais
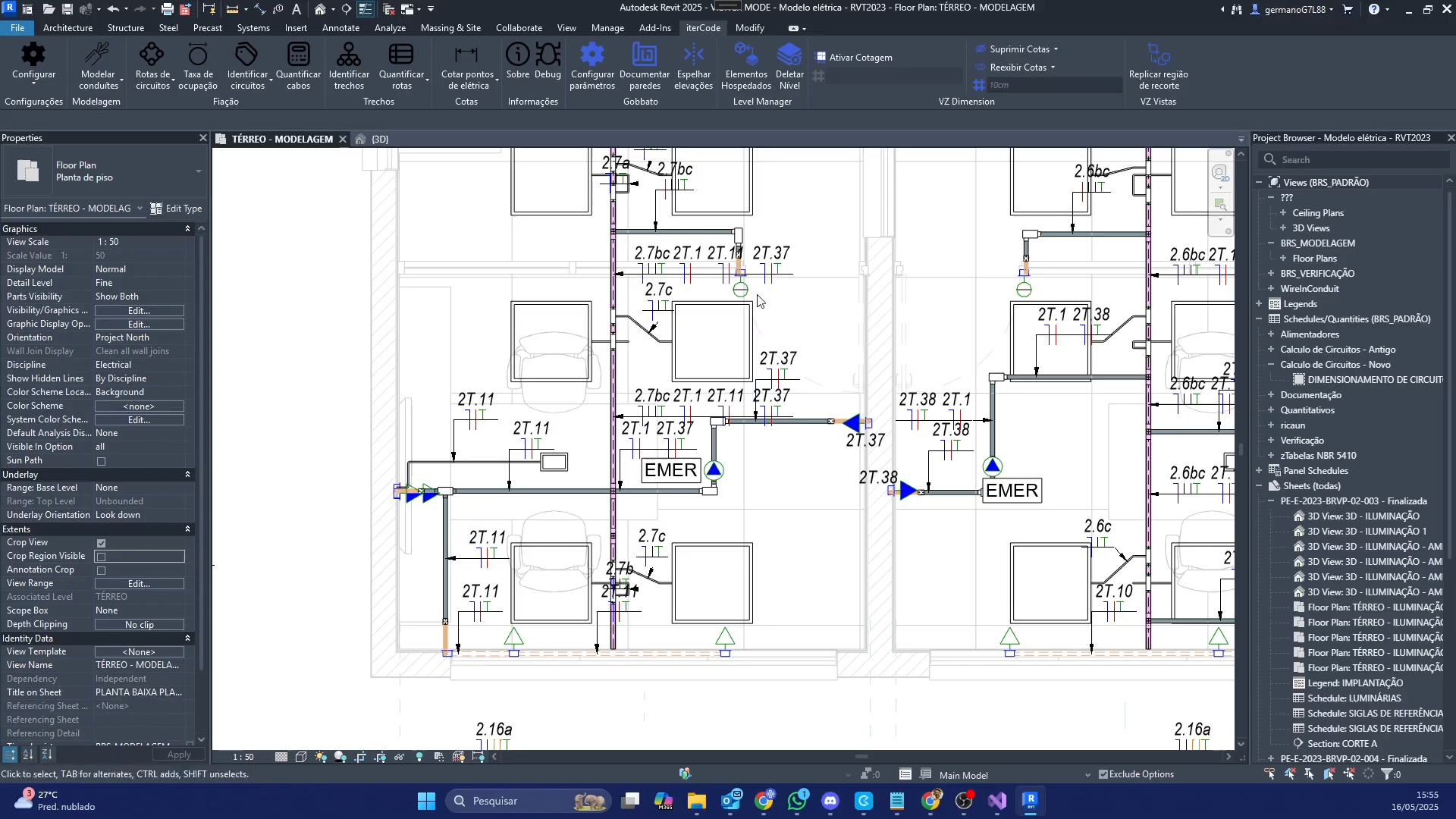
Tags automáticas de circuitos
+ Saiba Mais
Cotas automáticas de componentes elétricos
+ Saiba Mais
Distribuição de circuitos em rede elétrica
+ Saiba Mais
Criação de pranchas de paredes
+ Saiba Mais
Detalhamento de fundações
+ Saiba Mais
Detalhamento de furações
+ Saiba Mais
Paginação de peças em pisos e paredes
+ Saiba Mais
Replicação de recorte das vistas
+ Saiba Mais
Cotas automatizadas
+ Saiba Mais
Documentação de Caderno de Esquadrias
+ Saiba Mais
Geração Automatizada de Layouts Industriais
+ Saiba Mais
Detalhamento de Projeto de Furações
+ Saiba Mais
Nossos Clientes